Das Konzept
Nach den Umbau- und Sanierungsmaßnahmen wird dem Betrachter von Außen als markanteste Änderung der würfelförmige, moderne Anbau für die Inselbücherei ins Auge fallen. Die Verlegung der Bücherei ist die Voraussetzung für das Funktionieren des gesamten neuen Konzepts des Umbaus.
Damit wird ein unabhängiger Betrieb der Bücherei vom sonstigen Betrieb des Gemeindezentrums ermöglicht. Noch entscheidender ist, dass der durch den Umzug der Bücherei freiwerdende Platz im Erdgeschoss von Haus Ansgar, die Voraussetzung für wesentliche Verbesserungen im Raumprogramm des künftigen Gemeindezentrums mit sich bringt. So kann der Gemeinschaftsbereich und der Wohnbereich räumlich und funktional auf eigenen Etagen getrennt angesiedelt werden. Dabei werden auch die Raumzuschnitte entsprechend angepasst.
Die jahrzehntealte Leitungsinfrastruktur (Strom, Wasser, Heizung und Telekommunikation) wird auf den neuesten Stand gebracht. Außerdem müssen die für ein modernes Gemeindezentrum unerlässlichen oder notwendigen Standarts und gesetzliche Vorgaben baulich berücksichtigt werden, z.B. bei den sanitären Anlagen, beim Brandschutz oder der Behindertengerechtigkeit. So können nach dem Umbau, die oberen Etagen über einen Aufzug barrierefrei erreicht werden.
Die wichtigsten Maßnahmen
Erdgeschoss
Die gesamte Elektroinstallation, alle Wasserleitungen und die Heizanlage werden modernisiert, für den Betrieb der nächsten Jahrzehnte.
Im Erdgeschoss befinden sich sämtliche Gemeinschaftsräume, wie Speiseraum, Gemeinschaftsküche oder Seminarraum. Möglich wurde dies durch den Anbau für die Bücherei. Außerdem finden sich hier auch ein Gesprächszimmer, das Pfarrbüro und das Büro für die Bücherei.
Alle Etagen des Hauses werden barrierefrei über einen neu zu bauenden Aufzug erreichbar sein.
Die Raumaufteilung wird durch Herausnahme von nicht tragenden Wänden optimiert.
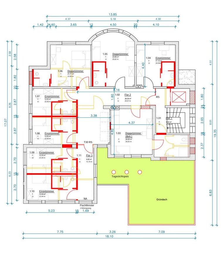
Obergeschosse
Da sich im Erdgeschoss die Gemeinschaftsküche befinden wird, dient das erste Obergeschoss nun ausschließlich als Unterkunft, für die Teams der Urlauberseelsorge oder für Personen die Exerzitien betreiben wollen.
Die Unterkünfte bestehen aus Einzel- oder Doppelzimmer. Zu jedem Zimmer wird ein Nasszellenbereich eingerichtet.





